Atlantic Townhouses
117 Atlantic Ave
Rochester, NY 14607
The Atlantic Townhouses are a small complex on the east side of the City of Rochester. Three buildings, built in 1969, are on one acre and include 12 one-bedroom units of approximately 580 square feet and 12 three-bedroom units of approximately 1,220 square feet.
1 Bedroom Floor Plan Video Walkthru
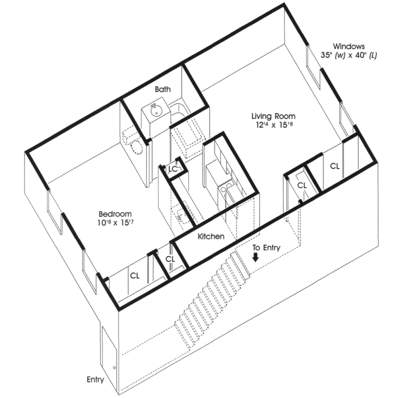
3 Bedroom Floor Plan
Atlantic Townhouse residents enjoy:
- On-site parking
- First-floor laundry
- Across-the-street playground and basketball courts
- In the Arts district
- Walking distance to the Memorial Art Gallery and Rochester Museum and Science Center
- Close to Village Gate, School of the Arts
- Smoke-free housing
